Les infos Essentielles
"BUREAU 82 m2 - JAS DE BOUFFAN - 13100 AIX EN PROVENCE"
LISA IMMOBILIER vous propose à la vente en exclusivité ces très beaux bureaux
Bureaux 82 m² Aix-en-Provence - Quartier Ouest - Jas de Bouffan -
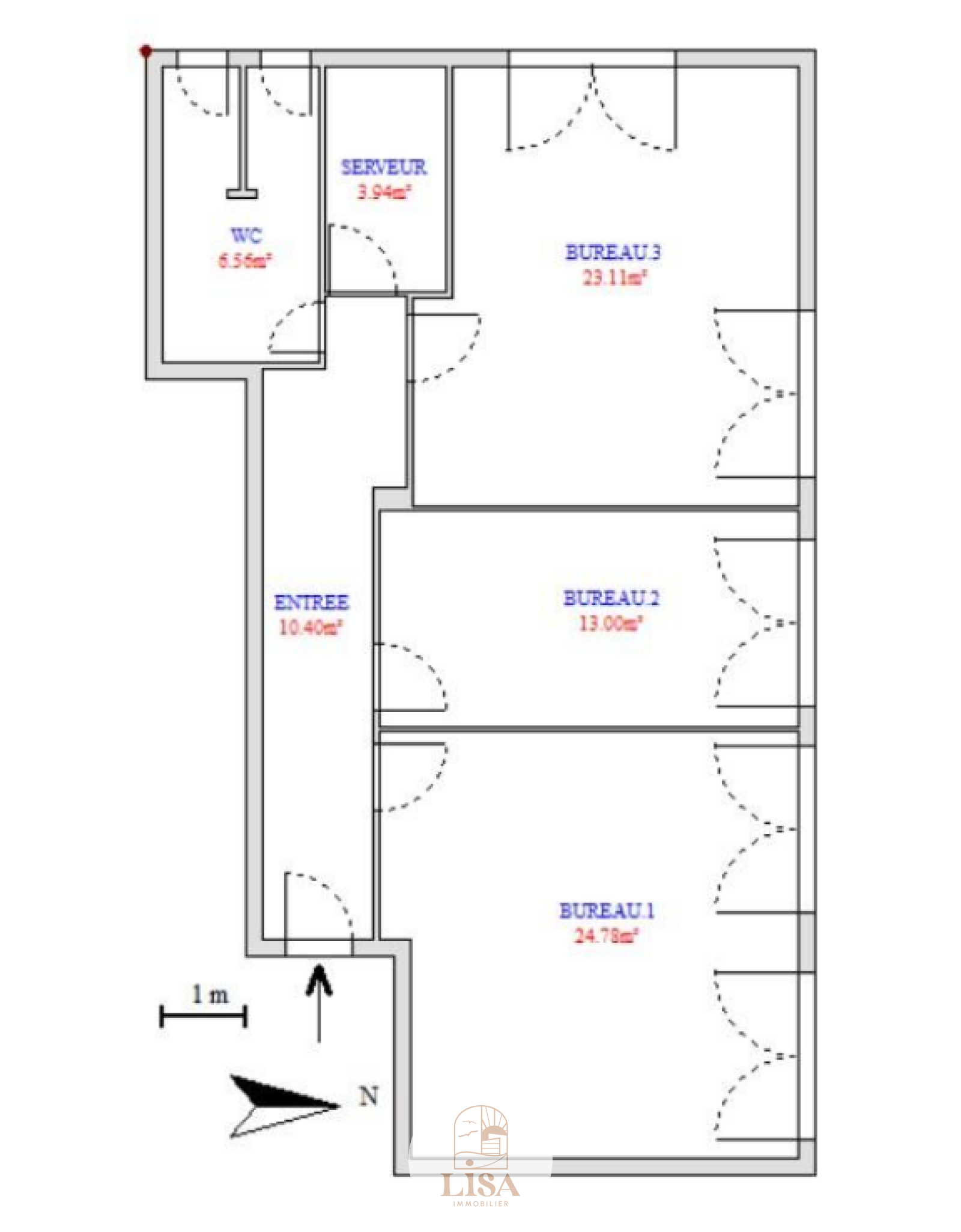
Dans un petit immeuble de bureaux et de cabinets médicaux, nous proposons à la vente au 2ème et dernier étage, ces locaux de 82 m2 ( vente des murs ) utilisés en bureaux. Composés d'une grande entrée, de 3 bureaux ( 2 de taille moyenne et 1 grand ), d'un sellier et d'un espace sanitaire avec 2 WC. Les cloisons sont faciles à déplacer. Locaux lumineux, double exposition.
Grandes baies vitrées, volets roulants, chauffage central. DPE vierge ( consommation non exploitable ). Copropriété de 12 lots. Charges de 210 €/mois comprenant le chauffage .
Prix : 156 200 EUR Honoraires inclus "charge vendeur"
Les informations sur les risques auxquels ce bien est exposé sont disponibles sur le site Géorisques : georisques.gouv.fr Surface.
A propos de la copropriété : Pas de procédure en cours
"LISA IMMOBILIER"
Les infos Energetiques
La base légale du traitement repose sur l’intérêt légitime de l'Agence / du Réseau.
Elles sont conservées jusqu'à demande de suppression et sont destinées à l'Agence / au Réseau.
Conformément à la loi « informatique et libertés », vous pouvez exercer votre droit d'accès aux données vous concernant et les faire rectifier en contactant l'Agence / le Réseau.
Si vous estimez, après avoir contacté l'Agence / le Réseau, que vos droits « Informatique et Libertés » ne sont pas respectés, vous pouvez adresser une réclamation à la CNIL.
Nous vous informons de l’existence de la liste d'opposition au démarchage téléphonique « Bloctel », sur laquelle vous pouvez vous inscrire ici : https://www.bloctel.gouv.fr
Dans le cadre de la protection des Données personnelles, nous vous invitons à ne pas inscrire de Données sensibles dans le champ de saisie libre
Ce site est protégé par reCAPTCHA, les Politiques de Confidentialité et les Conditions d'Utilisation de Google s'appliquent.
